Property Details
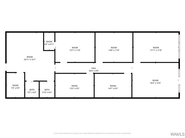
Suite C at 4720 University Boulevard East offers approximately 1,725 SF of office space with a flexible layout featuring multiple rooms connected by a central corridor, allowing for a mix of offices, meeting rooms, or work areas. The suite includes individual restrooms and is well suited for professional or service-oriented users seeking a functional setup within a multi tenant strip center with shared parking and strong visibility along University Blvd E.
Quick Facts
Unit C, 4720 University BoulevardTuscaloosa, AL 35404
MLS #173138
Listed about 2 months ago
$2,588 /month
Calculate PaymentsFeatures
- Type: Office
- Total Sq. Ft.: 1725.0